Dive into the detail
Discover our partners and explore the plans for the new Fakenham Leisure Centre and Sports Hub.
View the plans

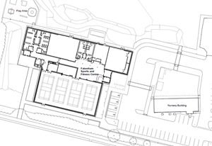
Proposed site plan
PDF, 688 KB

Existing site plan
PDF, 457 KB

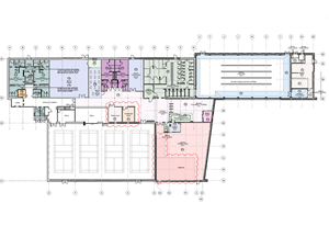
Floor plan
PDF, 246 KB

Landscaping plan
PDF, 393 KB
Meet the project team

Alliance Leisure
Alliance Leisure is the UK’s leading leisure development partner, supporting local authorities that want to improve or expand the leisure facilities and services provided to their local communities.
We develop leisure facilities ranging from £50m+ new builds and large-scale refurbishments, through to outdoor play pitches and play facilities.

REAL Consulting LLP
REAL Consulting LLP is a team of experienced professionals providing construction cost management, quantity surveying, and project management consulting services across the public and private sectors, based in Norwich, offering services throughout East Anglia and beyond.

DDL Projects
Established in 2012, DDI Projects is a privately owned firm that has completed projects ranging in size from £250,000 to over £5 million. Their vast experience covers the whole spectrum of construction fit-out, including gyms, spas, hotels, clubs, restaurants, retail stores and offices.

Saunders Boston Architects
Saunders Boston Architects designs and delivers inspirational buildings and environments that enhance the experience for all. SBA architectural and interior design teams produce stimulating and well-functioning buildings that are often highly serviced, complex and challenging projects serving multiple stakeholders.

Omega Design consultants
Omega Design Consultants, founded by Ian Cotgrave. With over 40 years of experience in design and project management. A leisure design and build specialist, he has delivered projects across the UK, differing in size from £100k to £10 million. Ian is now applying his experience, knowledge, and enthusiasm through Omega Design Consultants, utilising his skill sets to assist anyone in the leisure sector in bringing a conceptual idea to life.
Still need help?
Visit our contact us page for further assistance about our popular services and information.